Neubau Cafédrale Immanuel . Köln

Anerkennung beim Wettbewerb „Cafédrale Immanuel“ in Köln

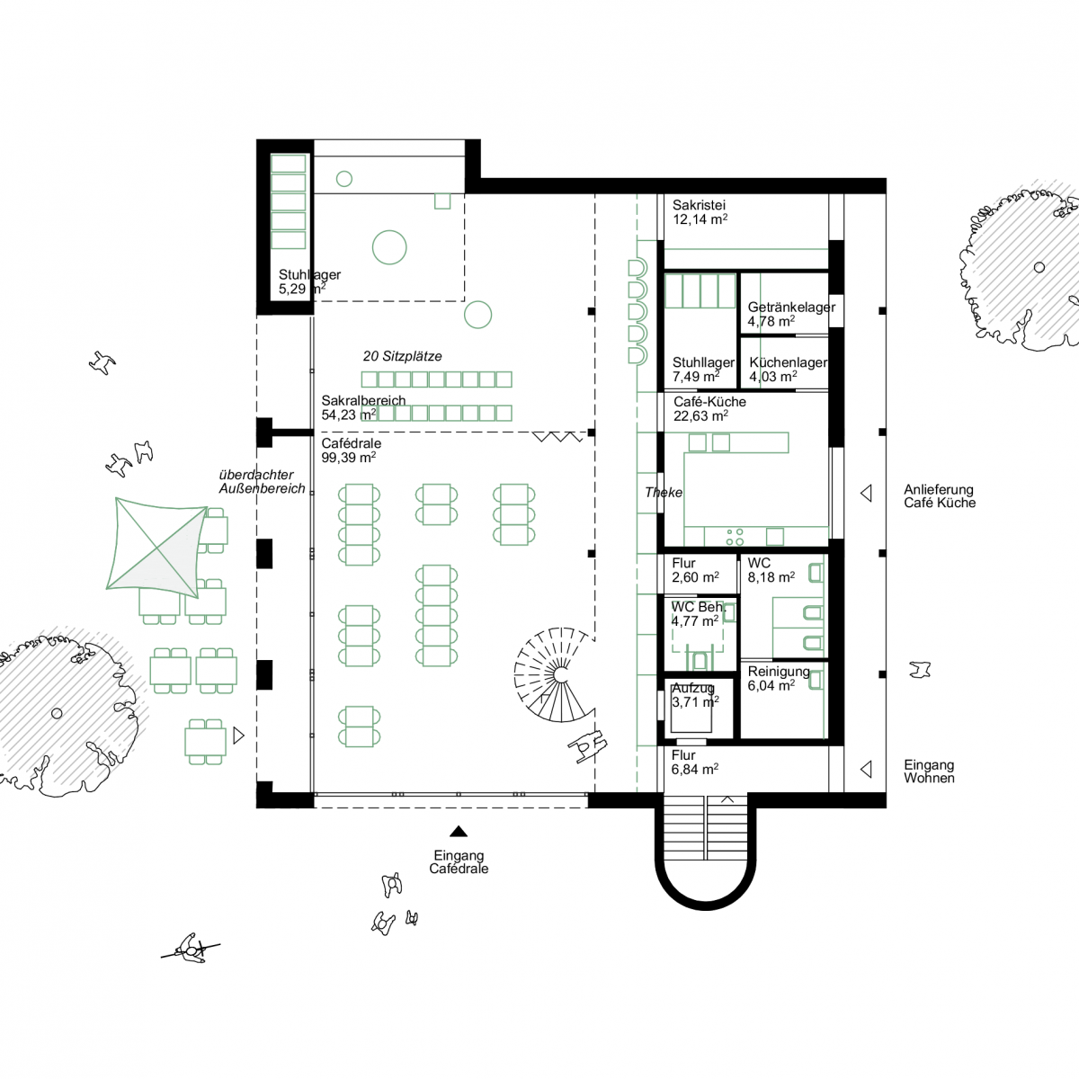
Wir freuen uns sehr, dass unser Wettbewerbsbeitrag für die Cafédrale Immanuel in Köln mit einer Anerkennung ausgezeichnet wurde. Ziel des Projekts ist ein offener, einladender Begegnungsort, der Kirche, Gemeinschaft und Nachbarschaft miteinander verbindet – ein Ort, an dem Spiritualität, Kultur und Alltag zusammenkommen. Die Jury würdigte unseren Beitrag als kreativen und vielversprechenden Ansatz, der das Potenzial des Ortes erkennt und neue Perspektiven für die Nutzung eröffnet.